Résidence Les Lilas
Projet de construction de 11 logements à Gissac Saint-Anne - Chantier en cours
PRESENTATION
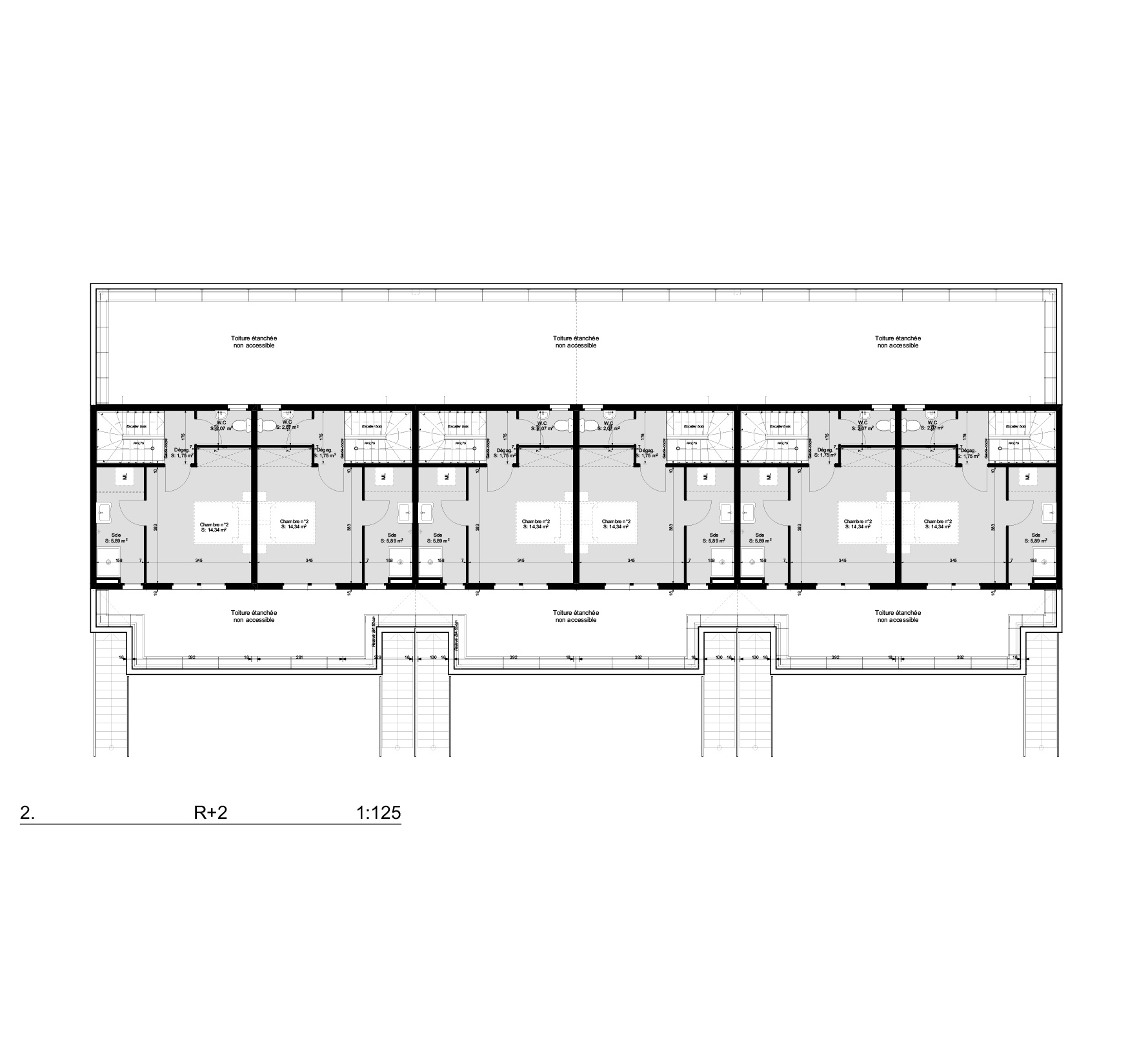
Le projet « Les Lilas » est un ensemble résidentiel moderne comprenant 11 logements répartis sur trois niveaux (R+1+Combles) avec une architecture contemporaine sobre caractérisée par une façade d'un blanc éclatant et une toiture foncée contrastante. Le programme propose une typologie mixte : des logements en rez-de-chaussée bénéficiant d'un accès et de terrasses privatives de plain-pied, et des duplex occupant le R+1 et les combles, desservis par des escaliers extérieurs et profitant de larges balcons avec garde-corps modernes. Implanté sur un terrain en pente, le projet gère le dénivelé avec un mur de soutènement en pierre et intègre potentiellement un accès semi-enterré, tandis que l'ensemble s'insère dans un cadre verdoyant et arboré, conférant une ambiance résidentielle agréable et sereine.
















